ความสุขขนาดพอดี ของบ้านขนาดพอตัว


2019-09-25 17:00

จำนวนครั้งที่เปิดอ่าน : 325

เมื่อพื้นที่ส่วนตัวในบ้านพักอาศัยเป็นเรื่องสำคัญ การเลือกที่จะปิดหรือเปิดพื้นที่ จึงกลายเป็นหัวใจของการออกแบบบ้าน แต่ถ้าผู้ใช้งานต้องการเปิดรับทิวทัศน์จากธรรมชาติ แต่ปิดกั้นบ้านเพื่อความเป็นส่วนตัวจะเป็นอย่างไร ?

     ซึ่งนี่คือเรื่องราวของบ้านหลังนี้ MP House แม้รูปลักษณ์ภายนอกจะดู ดิบ เท่ แต่ภายในกลับเต็มไปด้วยความอบอุ่น อยู่สบาย รวมทั้งบ้านหลังนี้ยังมีการใช้ระบบ Prefabricated เกือบ 100% ในการสร้างบ้านอีกด้วย

เชื่อมต่อความเป็นส่วนตัวด้วยพื้นที่ส่วนกลาง

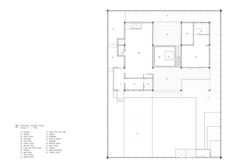
     บ้าน 2 ชั้นหลังนี้ มีพื้นที่ 450 ตารางเมตร ตั้งอยู่ในหมู่บ้านชวนชื่นพาร์ควิลล์ ถนนกาญจนาภิเษก โดยมีคุณชานนท์ คูวัฒนาภาศิริเป็นทั้งเจ้าของบ้าน วิศวกรออกแบบโครงสร้างและวางระบบของบ้าน โดยพื้นที่เดิมเป็นบ้านเก่าที่คุณชานนท์เคยอาศัยอยู่กับคุณพ่อและคุณแม่ เมื่อเขามีความคิดจะขยายครอบครัวของตนเอง จึงตัดสินใจทุบบ้านเก่าทิ้ง สร้างขึ้นใหม่บนพื้นที่เดิม โดยแบ่งพื้นที่เป็น 2 ส่วน ได้แก่ ส่วนของคุณชานนท์ และภรรยา ประกอบด้วยห้องนั่งเล่น ห้องรับประทานอาหาร ห้องทำงาน ห้องซ้อมดนตรี และ Master Bedroom อีกส่วนเป็นห้องนอนสำหรับคุณพ่อ คุณแม่ แยกออกมาอีกฝั่งเป็นส่วนตัว

     ในขณะเดียวกันก็เริ่มทดลองโปรเจคบ้าน Prefabricated ไปพร้อมกัน ซึ่งสถาปนิกผู้ออกแบบ คุณณฤชา คูวัฒนาภาศิริจาก I Like Design Studio ก็เป็นพี่ชายของคุณชานนท์ที่เข้ามาช่วยออกแบบฟังก์ชันและรูปแบบสถาปัตยกรรมให้ตรงตามความต้องการมากที่สุด

Dtips: อาคาร Prefabricated เป็นอาคารสำเร็จรูปที่ชิ้นส่วนโครงสร้างแต่ละชิ้นถูกผลิตสำเร็จจากโรงงาน ก่อนนำมาประกอบกันที่หน้าไซท์งาน การนำเทคโนโลยีนี้มาใช้จะทำให้การก่อสร้างบ้านสะดวกสบายและงานมีคุณภาพมากขึ้น

     ซึ่งรูปแบบของบ้านเป็นสไตล์ Modern Industrial มีความดิบ เท่ ทันสมัย แต่ในขณะเดียวกันก็ โปร่ง โล่ง ด้วยเฟอร์นิเจอร์ลอยตัว เพื่อการดูแลรักษาง่าย สะดวกต่อการทำความสะอาด โดย Mood & Tone หลักของบ้านก็ยังคงความอบอุ่น ชวนผ่อนคลาย เมื่อมองแล้วจะรู้สึกสบายตา ไม่อึดอัด เสมือนมีพื้นที่ในบ้านกว้างขึ้น

     เมื่อเดินเข้ามาในบ้านจะพบกับต้นไม้และชานกลางบ้านก่อนเป็นอันกับแรก ซึ่งพื้นที่ส่วนนี้เป็นดั่ง Common Space ที่คนในครอบครัวมาใช้เวลาร่วมกัน ชานกลางบ้านทำหน้าที่เชื่อมต่อระหว่างส่วนเจ้าของบ้านและห้องนอนของคุณพ่อ คุณแม่ เมื่อเข้ามาในส่วนเจ้าของบ้านจะพบกับห้องโถงขนาดใหญ่ Double Ceiling เป็น Open Plan ประกอบด้วยห้องรับประทานอาหารและห้องนั่งเล่น จัดวางเฟอร์นิเจอร์แบบลอยตัว เพื่อสร้างความโปร่ง โล่ง และดูแลรักษาง่าย

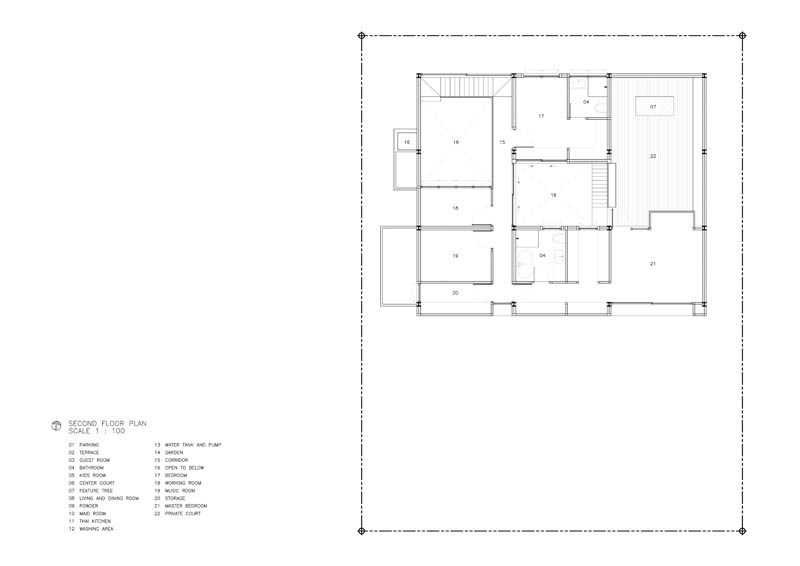
ห้องนั่งเล่น ทางเดินชั้น 2 และห้องทำงาน

     เมื่อเดินขึ้นบันไดสู่ชั้นบนจะพบกับโถงทางเดินยาว ซึ่งมีห้องทำงาน ห้องซ้อมดนตรี ห้องนอน และระเบียงภายนอกเชื่อมกับ Master Bedroom

     พื้นที่อีกส่วนเป็นพื้นที่สำหรับคุณพ่อ คุณแม่ของเจ้าของบ้าน ซึ่งในส่วนนี้จะแยกออกจากพื้นที่ส่วนแรกอย่างชัดเจน เพื่อสร้างความเป็นส่วนตัวให้กับคุณพ่อกับคุณแม่ และเชื่อมต่อกันด้วย Common Space กลางบ้าน

หากท่านสนใจติดตั้งหลังคา โครงหลัง หรือบริการต่าง ๆของ กอล์ฟการข่าง เพื่อบ้านของคุณ "กอล์ฟการช่าง งานเล็ก งานใหญ่ เราใส่ใจคุณ" พร้อมให้บริการด้วยประสบการณ์มากกว่า 10 ปี พร้อมให้คำปรึกษา ก่อนตัดสินใจ รับประกันความพึงพอใจของลูกค้า โดยทีมช่างมืออาชีพ ราคามิตรภาพพร้อมบริการทั้งหน้างานและบริการหลังการขายที่คุณต้องประทับใจ รับประกันงานดี มีคุณภาพ ราคาไม่แพงครับ!